1937年,美国工程师W.J.Assel在俄亥俄洲Wooster市Wayne Co.厚壁钢管厂对伍斯特尔轧机(Wooster Mill)重新进行了改造设计,他将这种改造设计后的斜轧管机以其名字命名为阿塞尔轧管机(ASSEL Mill)。由于这种斜轧管机采用了三个轧辊,因此一般称之三辊轧管机,而欧美各国则习惯于称它为阿塞尔轧管机(ASSEL Mill)。
阿塞尔轧管机(ASSEL Mill)的三个轧辊在机架中呈120度角布置,与长芯棒构成一个相对封闭的环状孔型。轧辊轴线相对于轧制中心线垂直方向和水平方向均倾斜于一定角度,分别叫喂入角和辗轧角。轧辊形状呈锥形,中间段有一个凸起叫做辊肩,轧制时与长芯棒完成集中变形,实现较大的压下量,延伸系数可达2左右。
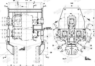
5.3.1 主要工艺设备阿塞尔(ASSEL)轧管机主要包括四部分,即:
5.3.1.1 前台入口端它包括毛管移送系统,由一个杠杆式移送臂将毛管送入插芯棒位置;
芯棒移送系统,芯棒通过法兰盘与小车联接,带有预旋转装置的芯棒小车在底座导轨上水平往返移动,芯棒小车的往返水平移动由双链轮传动系统驱动;为保证轧制时芯棒移动速度处于控制状态,由安装在导轨底座上的两个液压缸来限制芯棒小车在轧制过程中的前进速度,芯棒的冷却由配制在小车上的水管接头从小车尾部插入芯棒进行内水冷;在芯棒小车导轨中间的芯棒托辊托住芯棒,确保芯棒平稳插入毛管,在芯棒小车前进和后退过程中四个芯棒托辊依次抬起或依次落下,避免与小车相撞。
可调式三辊定心装置,分布在芯棒移送系统和轧机之间,它的作用一是抱毛管,二是抱芯棒,三是打开接受毛管;
芯棒润滑系统,在芯棒小车止推器与最末可调式三辊定心装置之间,在芯棒插入毛管的过程中对芯棒工作带进行轧制前的润滑;
升降输送辊、轧机前调整辊和夹送辊,确保毛管准确送入轧辊;挡管器,它是确保芯棒插入毛管的一个装置。
5.3.1.2 主机机架,由牌坊底座和旋转顶盖组成。


图5-36 轧辊总成

图5-37 轧辊调整系统
更换轧辊是,机架上盖通过两个液压缸打开,落在一个撑接支架上,以便三个轧辊通过吊车和换辊装置进行更换。牌坊底座和旋转顶盖在轧制期间由四个液压夹紧缸锁紧。三个工作辊安装在轧机机架上,呈120°布置,按这种方式顶部一个轧辊,底部两个轧辊。
三个工作轧辊装配包括带轴的轧辊,耐磨轴承和两个轴承箱,装配后形成一个更换件,该更换件装入轧辊座内。
轧辊调整装置保证按照轧制要求调整孔喉和辗轧角,由两个电动压下丝杠完成的,它们可单独操作,也可以同时操作,当两个压下丝杠进行反向运动时,可调整轧辊的辗轧角,确定辗轧角后,两个丝杠同时压下或抬起可调整轧辊的孔喉尺寸。在两个压下丝杠之间,机架内有一个液压缸与轧辊座连接,它的作用是保持辊箱的稳定,避免压下丝杠端部与转毂之间产生间隙,我们称之为平衡缸。
轧辊座(小转毂)安装在转毂(大转毂)内,当调整喂入角时,转毂就由一个主轴传动系统旋转到适当角度。每个转毂都有一个独立的传动系统,前进角从0°~12°范围内无级可调,每个转毂都有两个液压夹紧缸锁紧。
在上辊出料侧的压下丝杠、轧辊调整装置和轧辊轴承座之间,安装了一个液压快开装置,它的作用时在轧制快结束时投入工作。它用一个连接环限制行程并满足运行要求,当活塞向内运动时,轧辊提起,以实现对毛管尾部的无压下轧制,以此防止毛管尾端形成三角形喇叭口。
整个牌坊机架放置在紧固于基础上的两个底板上。
5.3.1.3 后台出口端
图5-38

图5-39
为防止荒管表面划伤和薄壁管发生表面扭曲现象,在轧机出口处装有一个辊式导向装置,它同两条与轧制方向平行排列的长驱动辊相连,长驱动辊以均匀的转速导卫厚壁钢管前进,当轧制结束时,上导辊抬起,两个下导辊之间的输送辊抬起,夹送辊压下,通过输送辊驱动将荒管送往后面的输送辊道。长驱动辊底座根据荒管直径的不同,可整体上下调整中心线。
5.3.1.4 传动系统;每个轧辊均有独立的传动系统,由万向接轴,减速机和电机组成,轧机采用后台传动方式。
5.3.2 主要调整参数基本概念(均以上辊为例)
喂入角:轧辊轴线和轧制线分别在水平面上进行投影,它们的投影线之间的夹角称为喂入角(feed angle、前进角、送进角、)
辗轧角:轧辊轴线和轧制线分别在垂直平面上进行投影,它们的投影线之间的夹角称为辗轧角(spread angle)
5.3.2.1 轧辊喉径和辗轧角的调整Assel轧机的三个工作辊在轧机机架里成120°布置,轧辊安装在轧辊座上,轧辊座安装在转毂里。每个转毂都由两个压下丝杠调整,一个在入口侧,一个在出口侧,两个压下丝杠可分别单独调整,以得到适合的“轧辊喉径”和“辗轧角”。
1 辗轧角设定
以轧辊座的底面作为测量表面,当这表面与轧制中心线平行时,辗轧角为零。在机架牌坊的出、入口设有测量点,三个转毂共有6个测量点,测出的数据存入计算机。
当轧辊座上两块止推板到轧制中心距离相等时,辗轧角为5°
2 辗轧角和轧辊喉径的调整
辗轧角的调整:
辗轧角(β)调整时,轧机出口和入口侧的压下丝杠做反向调整,以出口打开,入口压下为正调整(辗轧角增加)。
出口丝杠行程=标准行程+轧辊半径*(1-cos(β-5))+350*tan(β-5)
入口丝杠行程=标准行程—轧辊半径*(1-cos(β-5))+350*tan(β-5)
轧辊喉径的调整:
在Assel孔型中安装测量棒,同时在轧机出口和入口分别安装测量架。将轧辊座上出口和入口的测量栓与测量架上的测量栓分别对正。此时的辗轧角为5°,测量棒与测量架拆除后,压下丝杠做同向同步调整就相应的改变轧辊喉径。
调整后喉径=原喉径+2*丝杠调整距离
轧辊中心与轧制中心的距离=(轧辊直径+轧辊喉径)/2
当轧辊直径改变时,需重新在计算机中输入轧辊直径,通常情况下,辗轧角和轧辊喉径的设定和调整通过计算机控制完成。
5.3.2.2 喂入角的设定和调整Assel轧机的轧辊安装在三个转毂里,通过对转毂的旋转调节,可以得到某一喂入角
轧辊的0°喂入角,对应于轧辊的拆装位置,轧机的喂入角0~12°可调。
图中给出的是上辊喂入角的调节方式,在Assel轧机上,上辊(1#辊)和左辊(3#辊)

图5-40
的喂入角调节行程是一致的,而右辊(2#辊)由于调节装置安装方向与前两个辊相反,因此它的调节行程与另两个辊不同。
5.3.2.3 Assel轧管机的工作过程1 前台
穿孔后的毛管通过横移车移送至Assel轧机前台,然后由毛管移送臂将毛管送入轧机入口侧辊道上,移送臂回到原位。辊道输送毛管至挡板前,定心辊抱住毛管,停在等待芯棒插入的位置上。
芯棒在辊子的支撑下,由原始位置通过芯棒小车的驱动高速插入毛管中(1.5m/s)。芯棒的工作段在穿过石墨润滑箱时被喷上石墨润滑剂。芯棒的支撑辊随着芯棒小车的前进逐个落下。
芯棒到达插入位置后,挡板升起,夹送辊落下,输送辊道启动,毛管和芯棒同步前进。芯棒在到达工作位置之前,由芯棒小车上的带有超越离合器的辅助驱动装置进行预旋转,带动毛管旋转进入AsseL轧机的工作辊中。在芯棒到达工作位置之前,芯棒小车与限动梁联锁。限动梁开始控制芯棒的前进速度(0.07~0.2m/s),使芯棒的前进速度低于厚壁钢管的前进速度。随着毛管被Assel轧辊咬入,入口侧输送辊道全部集体落下至低位。随着轧制过程中厚壁钢管不断地旋转前进,厚壁钢管尾部每离开一架三辊定心,该架三辊定心从原来的抱毛管位,变为抱芯棒位。
在轧制结束后,前台输送辊升起至托芯棒位,三辊定心集体打开至低位,芯棒小车高速退回原始位置(4m/s),限动梁在液压缸的带动下退回原位。在芯棒小车回退过程中,芯棒托辊逐架抬起,托住芯棒。芯棒的工作段通过石墨润滑箱时被喷上石墨润滑剂。
2 主机
轧辊在开始咬入前处于低速旋转,当毛管随芯棒进入轧辊后开始一次咬入,在此时毛管只在直径上受到压缩,随着厚壁钢管前进,在轧辊的台肩开始毛管内表面接触芯棒表面进行减壁,实现二次咬入。正常咬入后轧辊转速提高到设定的轧制速度,进行高速轧制。在轧制结束后轧辊转速降回低速。通常咬入速度是轧制速度的70%
在生产薄壁管时,为防止荒管前端产生喇叭形扩口,在毛管被轧辊咬入前,上轧辊的辊缝预先设定在比正常轧制辊缝稍大的位置,当毛管头部通过轧辊的台肩后,上轧辊快速恢复到正常轧制位置,我们把轧辊的这个动作叫做“快关”。
同样是在轧制薄壁管时,为了防止厚壁钢管尾部形成三角形而造成的轧卡,在厚壁钢管尾端通过轧辊台肩之前,上轧辊的辊缝被打开到一个较大的位置,对厚壁钢管尾部不减壁,从而避免了尾三角的形成。
通常情况下,当Assel轧后荒管径壁比(D/S)>12时,采用快开动作,当径壁比>16时,使用快关动作。
3 后台
在开始轧制时,由于芯棒端部首先伸出轧机进入后台,离轧机最近的双导辊首先托住芯棒端部,随着荒管从轧机中轧出,双导辊变换至托荒管位。
在轧制开始时,后台的长导辊处于高速转动状态,它的旋转方向与轧辊旋转方向一致,长导辊辊面线速度与荒管的表面线速度保持一致。当荒管进入双导辊时,导辊的辊面与荒管的表面几乎不产生滑动摩擦,一方面避免了对荒管表面的划伤,另一方面由于长导辊几乎对荒管的旋转不产生阻力,也避免了荒管的扭转。
荒管进入长导辊后,首先是两个连在一起的上导辊从打开位压下至抱荒管位,随着荒管的不断前进,后台的上导辊逐架由打开位压下至抱荒管位。
当荒管尾部离开轧机,轧制结束时,长导辊立即从高速转动降低到一个很低的转速,在长导辊最前端的两个连在一起的上导辊此时有一个抱紧荒管的动作,确保在抽芯棒时,荒管不会被芯棒带回轧机。
芯棒从荒管中抽出后,后台全部上导辊打开,长导辊中间的输送辊升起,后台的夹送辊压下,共同将荒管输送出长导辊,在长导辊后的三个固定输送辊继续将荒管输送至定径前升降辊道。
5.3.2.4 Assel轧机的变形过程Assel轧机的变形区是由三个相同的轧辊和芯棒组成的,三个轧辊同向旋转。轧机中心线和轧制线一致,从轧制线到三个轧辊的距离相等,一般在生产壁厚较大的厚壁钢管时采用回退式轧制方式,主要是厚壁管的脱棒间隙较小,不便于抽棒。通常情况下均采用限动轧制方式进行轧制。

图5-41 Assel轧管变形区横截面
Assel轧机的变形过程与二辊斜轧延伸机相类似,轧辊辊型也由咬入区(入口锥)、脊部(台肩)、均整区和出口区组成。

图5-42
毛管被轧辊一次咬入后,进入入口锥,入口锥角一般约为2.5~3°,由于毛管内径大于芯棒直径,首先进行减径,当直径上的压下量等于毛管内径与芯棒的间隙值(插棒间隙)时,毛管内表面开始接触芯棒表面,此时一次咬如阶段结束。由于辊面台肩急剧压下,而厚壁钢管内壁受到芯棒的限制因此开始减壁,进入二次咬入阶段。一次咬入主要是减径区,该区的主要作用是建立足够的曳入力,以克服来自轧辊脊部(台肩)的轴向阻力,实现二次咬入。有时为了实现二次咬入,在入口锥提前减壁。一般在入口锥的壁厚压下量等于(0.18~0.25)Hs,Hs为台肩高度。
毛管到达台肩时,壁厚有较大的压下量,厚壁钢管的延伸变形主要集中在台肩完成。因为厚壁钢管的内径保持不便(减壁变形时厚壁钢管内径就等于芯棒直径),这时的壁厚压下量就等于直径压下量的一半。
毛管通过台肩后进入均整区,均整区的辊面在辗轧角为5°的情况下是与轧制线平行的,因此该区的变形量很小,该区的作用是辗轧壁厚,进行定壁。最后厚壁钢管经出口锥归圆轧出。

图5-43
Assel轧管机在轧制过程中,厚壁钢管横截面的变化是从圆到圆三角形,最后再归圆的过程。
由于变形区不是完全封闭的,有较大的辊缝存在。在轧制进行到厚壁钢管的尾端时,金属容易被挤入辊缝而形成尾三角,尾三角会卡在轧辊缝隙中造成后卡。通常采用在轧辊出口设置快开装置,提前放大轧辊与芯棒的距离,对厚壁钢管尾部不减壁的方法解决尾三角后卡的问题。采用快开方式在一定程度上解决了Assel轧制薄壁管时的后卡,但是如果轧机快开的控制不准确,往往造成厚壁钢管尾端增厚段过长,最终造成钢耗过大。
5.3.2.5 Assel轧管机的液压快开装置1 设置快开装置的目的
在Assel轧管机上辊转毂的出口侧装有一个液压快开装置,它可以在轧制薄壁厚壁钢管的头部和尾部时进行动作,避免Assel轧机在轧制薄壁厚壁钢管时的头部喇叭口缺陷和尾部三角形缺陷。控制头部喇叭口的目的是为了给生产线上的下一道工序提供更稳定优质的原料;控制尾部三角的目的是防止轧机本身发生轧卡。
2 快开装置的动作过程以及控制方法
快开液压缸的基本位置是满冲程,即液压缸伸出最大行程。该装置的动作分为“快关”和“快开”两种方式。在该液压缸内装有位置检测元件,可以对液压缸的动作行程进行设定。
1) “快关”
当采用“快关”方式进行动作时,在轧机开始轧制前,液压缸回收一定的行程,由于该液压缸的上部顶住了轧机上辊出口侧的压下丝杠,下部顶住上轧辊座的出口侧,它回收了一定的行程,而轧辊座的入口仍保持在原压下位置,上轧辊座在上辊平衡液压缸的拉动下,带着上轧辊,以轧辊座入口的固定点为旋转中心,向上旋转一定的角度。
由于轧辊向上抬起,造成辊面与芯棒之间的距离加大,当毛管头部在此处通过时,可以减少轧辊对毛管壁厚的压下,由于壁厚压下量的减小从而减小了厚壁钢管的横变形,因此可

图5-44
以减轻甚至消除Assel轧制薄壁管生产时的喇叭口现象。在毛管头部通过轧辊台肩后,为了保证厚壁钢管管体的壁厚精度,上轧辊需要迅速恢复正常轧制位置,快开液压缸应立即恢复满行程的工作位置。但是由于此时的轧辊压下正处于厚壁钢管轧制过程中,属于带钢压下,需要的压力很大,同时压下动作要求在极短的时间内完成(约0.3秒)。为此在原有的快开液压缸外设置了一个增压缸来保证“快关”动作的及时和准确。
2) “快关”动作的局限性
由于“快关”动作需要在毛管咬入前打开轧辊距离,但是为了保证毛管顺利进行一次咬入,轧辊距离不能打开过大(如果快关动作打开的轧辊距离过大,会造成轧机入口的辊距增大,将难以实现毛管的一次咬如)。因此“快关”动作对毛管头部减壁量的影响是有限的,最终对薄壁管喇叭口缺陷的改善能力也受到限制。
为了弥补“快关”动作消除薄壁管头部喇叭口能力上的不足,Meer公司推荐使用阶梯芯棒配合“快关”动作共同完成对“喇叭口”的消除。

图5-46 集中换辊吊运装置

图5-47
2 轧辊设计
首先根据产品规格和轧制表计算轧辊入口和出口的开口度。
入口:ΔE=LE1*tana1+HS
出口:ΔA=R1(1-cosa2)+LA1*tana2
ΔE≥Δe ,Δe=CH/2+(SH-SL);
ΔA≥Δa ,Δa= CL/2;
CH=dH-2SH-DM
CL=dL-2SL-DM
ΔE ——轧辊入口的开口度;
Δe ——毛管需要的开口度;
ΔA ——轧辊出口的开口度;
Δa ——荒管需要的开口度;
LE1 ——轧辊入口锥长度;
LA1 ——轧辊出口锥长度;
a1、a2 —— 入口辊面锥角、出口辊面锥角
R1 ——过渡圆弧半径
dH、 SH、CH ——毛管直径、毛管壁厚、插棒间隙;
dL 、SL、 CL——荒管直径、荒管壁厚、脱棒间隙;
DM ——芯棒直径;
1) 入口侧的计算
咬入系数k的定义:
k=LG/dH
LG=ΔeR/tana1
ΔeR= CH/2+(SH- SL)-HS
LG:一次咬入长度
ΔeR:
k值一般应在0.4~0.7之间。
首先选择轧辊入口锥角a1,a1:2.5°~4°,推荐3°。因咬入条件的限制,小于2.5°或者大于4°时,轧辊很难完成咬入过程。
2) 出口侧的计算
首先选择出口角a2和过渡半径R1,建议开始时选择a2=3°和R1=150~200mm
以此计算下列变量:
ΔAR1=R1(1-cosa2);
a2的推荐值为2°~10°
下面可以计算所有毛管所需的出口侧长度:
la=R1sina2+(Δa-R1(1-cosa2))/tana2
la——任一荒管所需的出口长度
Δa——荒管所需出口侧的开口度。
3) 轧辊台肩的计算
肩角β为50°,计算肩高Hs和肩长Ls:
Hs=(Rs+rs)(1-cosβ)- rs(1- cosa1)
Ls=(Rs+rs)sinβ- rs*sina1
4) 辗轧段长度的计算
辗轧段长度计算如下:
Lk=U*ηa*π*dL/3*tanγ
U——辗轧系数(1.6~2.2)
ηa——滑移系数(0.75~1.0)
γ——喂入角
免责声明:本网站(港澳资料大全)刊载的“5.3 新型Assel轧管机(厚壁钢管)”等均源于网络,版权归原作者所有,且仅代表原作者观点,本文所载信息仅供参考。转载仅为学习与交流之目的,如无意中侵犯您的合法权益,请及时联系删除。本网站刊登此篇文章并不意味着本站赞同其观点或证实其内容的真实性,我们不对其科学性、严肃性等作任何形式的保证。如果侵犯了您的版权,请尽快联系我们予以撤销,谢谢合作!
请查看相关产品 厚壁钢管,厚壁无缝钢管,厚壁管,无缝钢管厂,港澳资料大全